0989991266

Một bộ hồ sơ thiết kế KIẾN TRÚC giúp ích được gì cho bạn?

Một bộ hồ sơ thiết kế KIẾN TRÚC giúp ích được gì cho bạn trước, trong khi thi công và sau khi sử dụng:

1. Một bộ hồ sơ thiết kế KIẾN TRÚC giúp bạ đảm bảo công trình đúng ý tưởng và nhu cầu

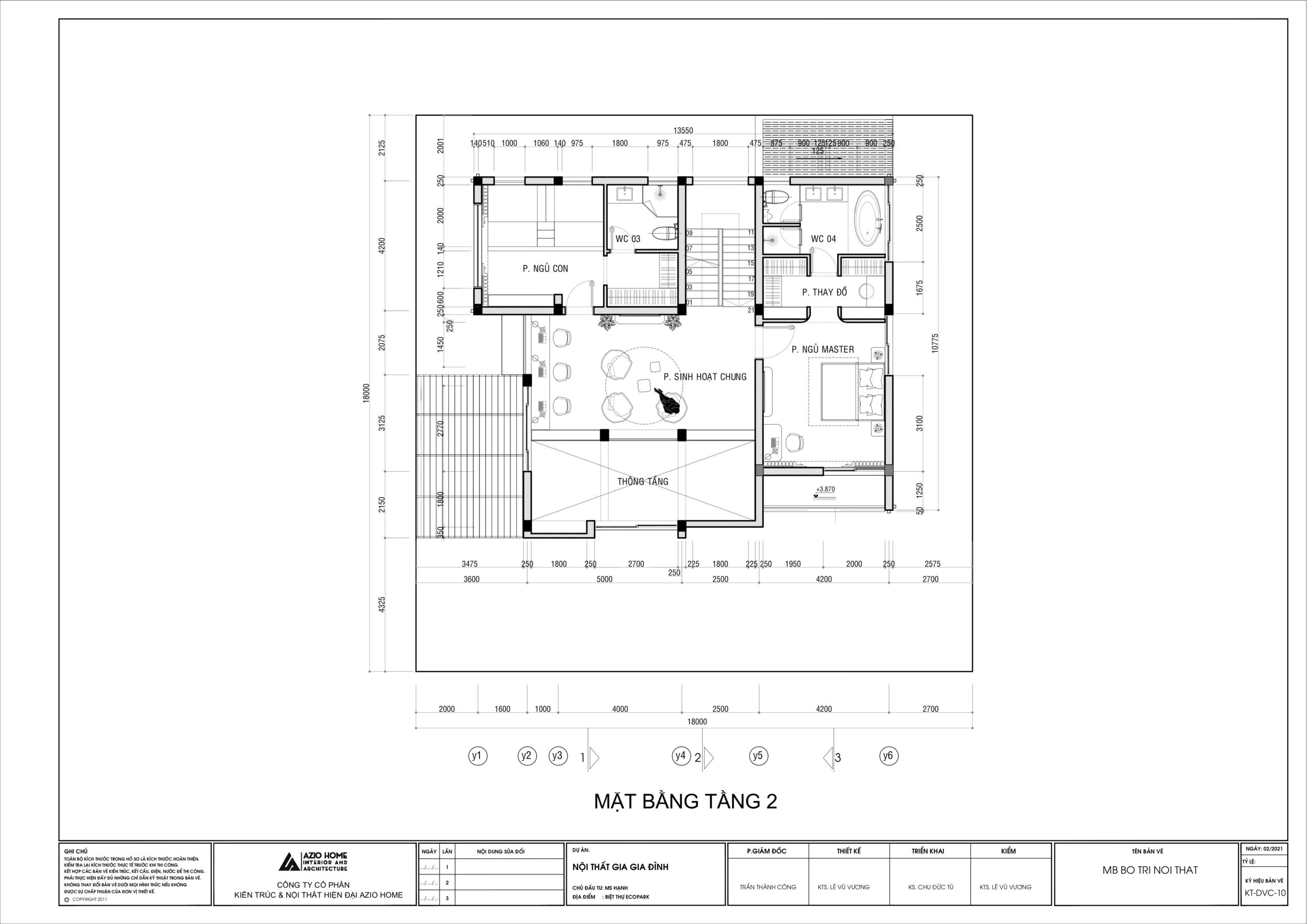
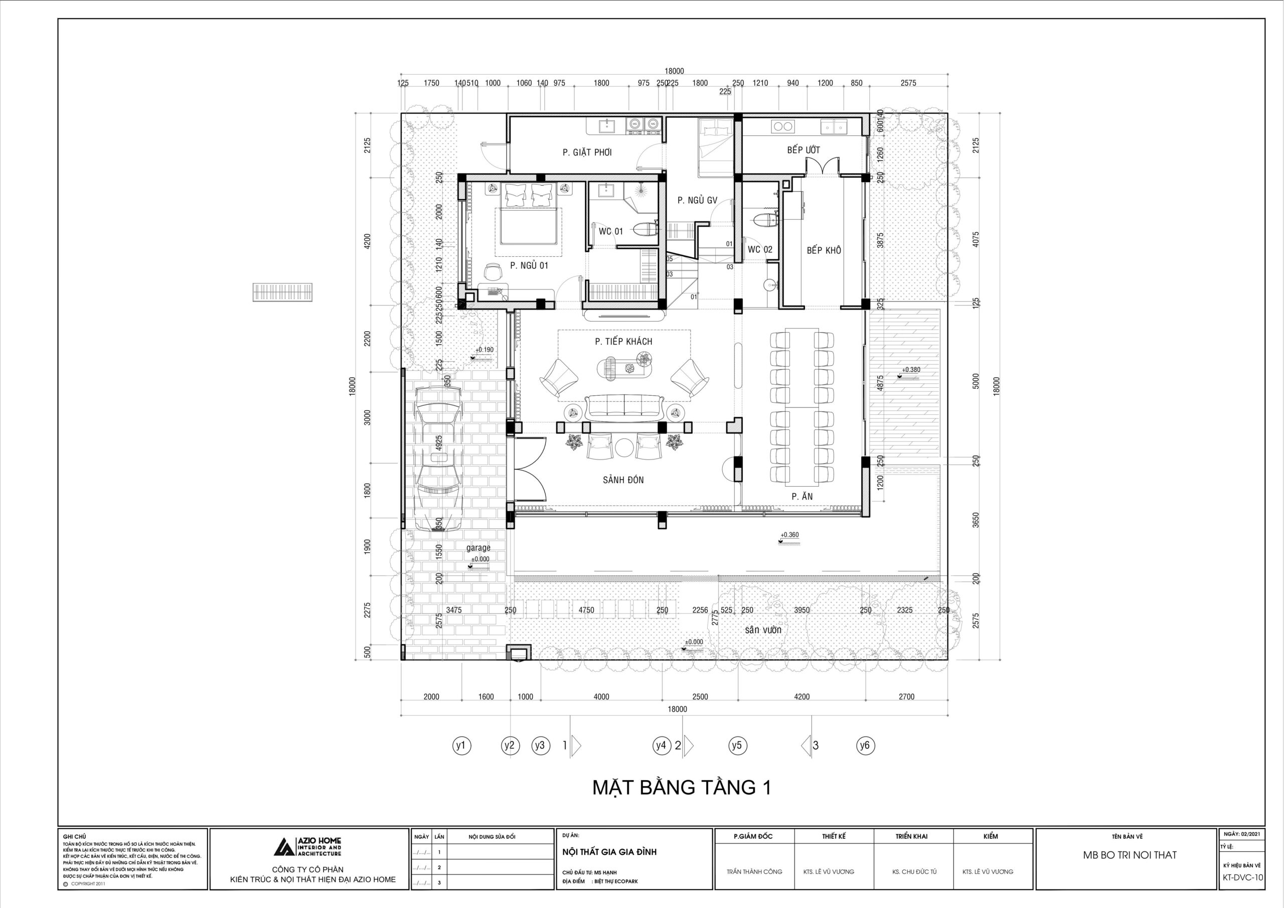
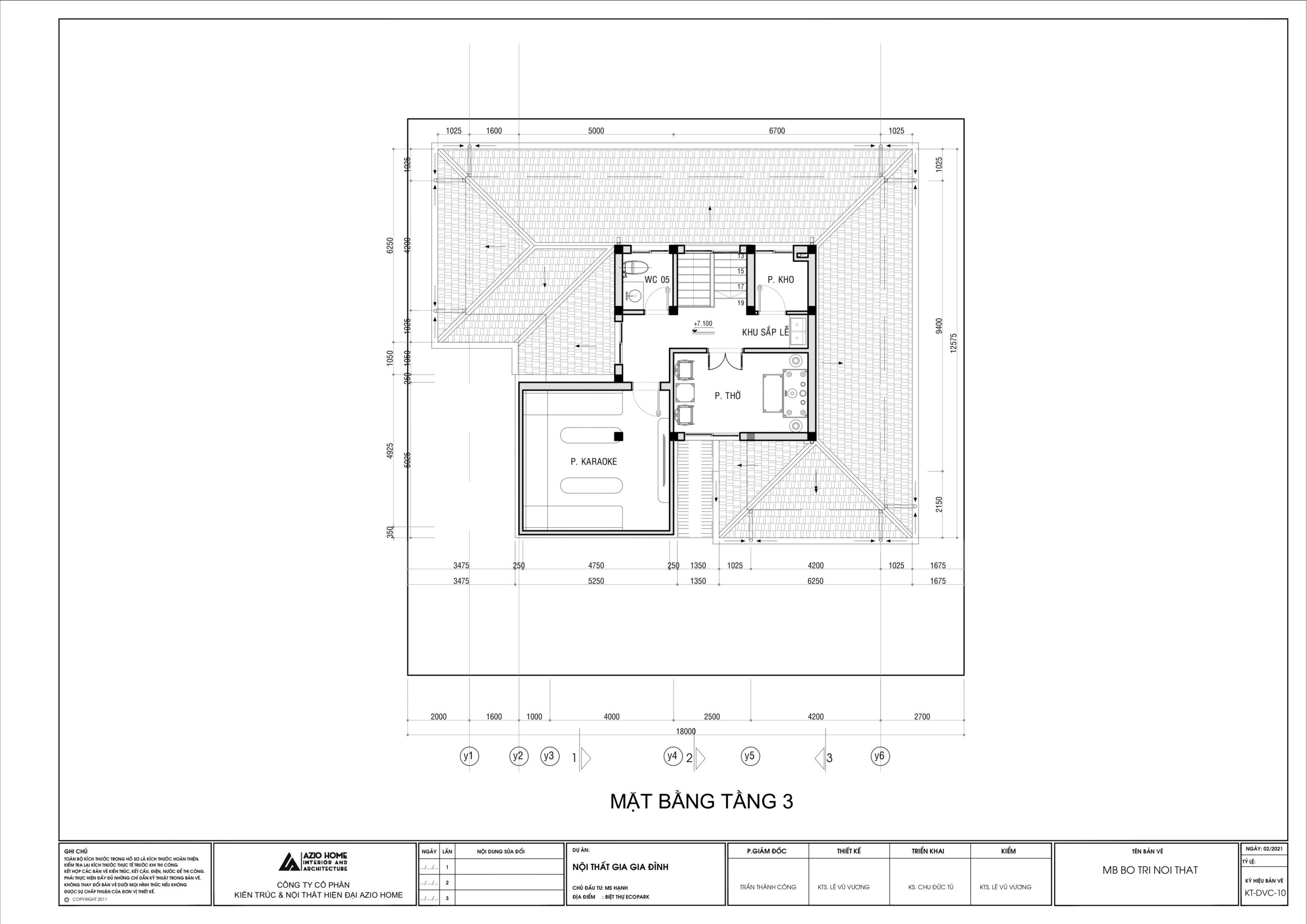
Trong mỗi thiết kế quan trọng và cái lõi của bộ thiết kế chính là việc bố trí mặt bằng công năng. Bước này nhiều người nghĩ đơn giản nhưng để đảm bảo được công năng, sự lưu thông thuận tiện, dòng chảy giao thông liền mạch khoa học là điều không hề đơn giản

 

Hồ sơ thiết kế KIẾN TRÚC Hồ sơ thiết kế KIẾN TRÚC

– Cá nhân hóa thiết kế: Hồ sơ giúp hiện thực hóa mong muốn của chủ đầu tư về phong cách, công năng, và không gian sống.
– Dự toán chi phí chính xác hơn: Xác định rõ vật liệu, khối lượng thi công để tránh phát sinh chi phí ngoài dự kiến.
– Giúp hình dung rõ ràng: Các bản vẽ 3D và mặt bằng giúp chủ đầu tư dễ hiểu hơn về ngôi nhà trước khi xây dựng.
Hồ sơ thiết kế KIẾN TRÚC

2. Hỗ trợ thi công chính xác, hạn chế sai sót

– Một bộ hồ sơ thiết kế KIẾN TRÚC có hướng dẫn chi tiết: Hồ sơ bao gồm bản vẽ kiến trúc, kết cấu, điện, nước… giúp nhà thầu thi công đúng kỹ thuật.
– Tránh thay đổi trong quá trình xây dựng: Hạn chế việc phải chỉnh sửa hay phá dỡ do không có kế hoạch rõ ràng từ đầu.
– Tiết kiệm thời gian và công sức: Quy trình xây dựng mạch lạc, dễ dàng giám sát và điều phối công việc.

3. Đáp ứng tiêu chuẩn kỹ thuật và pháp lý

– Tuân thủ quy định xây dựng: Hồ sơ giúp đảm bảo công trình phù hợp với quy chuẩn xây dựng, an toàn và bền vững.
– Một bộ hồ sơ thiết kế KIẾN TRÚC cung cấp đầy đủ bản vẽ từ đó dễ dàng để xin phép xây dựng: Một số bản vẽ trong hồ sơ được dùng để xin giấy phép từ cơ quan quản lý. (Bình thường nếu không có hồ sơ anh chị cần 1 khoản kha khá để bên cấp hồ sơ xin phép thi công. Nhưng khi có hồ sơ thiết kế, bạn chỉ cần thêm 1 chi phí nhỏ để xử lý)

4. Tăng giá trị bất động sản

 

 

 

 

 

 

–  Việc tăng giá trị cho ngôi nhà giống như việc các căn hộ chung cư ở mỗi dự án, những dự án có thiết kế công năng tối ưu, màu sắc nội thất hài hòa luôn được người mua ưu ái hơn và bán tốt hơn. Chính vì thế một ngôi nhà có bản thiết kế bài bản thường có giá trị cao hơn trên thị trường.
– Tính toán phong thủy, tiện nghi: Giúp không gian sống hài hòa, tối ưu công năng và tạo cảm giác thoải mái.

5. Cơ sở để bảo trì, nâng cấp về sau

– Một bộ hồ sơ thiết kế KIẾN TRÚC giúp bạn bảo trì dễ dàng: Khi cần sửa chữa, chủ nhà và thợ có thể tham khảo bản vẽ hệ thống điện, nước để xử lý nhanh chóng.
– Dễ dàng nâng cấp, mở rộng: Hồ sơ giúp định hướng cách cải tạo mà không ảnh hưởng đến kết cấu chung
Mỗi công việc luôn cần nó cần kiến thức, kinh nghiệm và trải nghiệm (câu này của anh mình tên là Thái Công) và người thông thái luôn biết cách tối ưu điều đó
Hồ sơ thiết kế KIẾN TRÚC
Phối cảnh căn biệt thự

Xem thêm các dự án thiết kế và thi công của chúng tôi tại các dự án Vinhomes

Aziohome có đội ngũ Kiến trúc sư, Kỹ sư tài giỏi và dày dạn kinh nghiệm trong thiết kế kiến trúc, thi công xây dựng các hạng mục công trình. Chúng tôi lấy sự hài lòng của khách hàng làm mục tiêu lớn nhất và tự tin mang đến các mẫu thiết kế phong cách cùng dịch vụ chuyên nghiệp.

Hãy liên hệ ngay với Aziohome  để được tư vấn tốt nhất!

CÔNG TY CỔ PHẦN KIẾN TRÚC VÀ NỘI THẤT HIỆN ĐẠI AZIOHOME

Địa chỉ:  Tòa A1 Vinhomes Gardenia, Hàm Nghi, Nam Từ Liêm, Hà Nội

Hotline: 0925.11.4444 or 0989.991.266

Email:  Aziohomedesign@gmail.com

Trả lời

Email của bạn sẽ không được hiển thị công khai.

error: Content is protected !!
Nhắn tin qua Facebook Zalo: 0989991266